Lifting Plan Examples are the ideal option for staying organized and managing your time successfully. These calendars can be found in a variety of formats, including monthly, weekly, and yearly layouts, allowing you to select the one that fits your preparation style. Whether you're tracking visits, setting objectives, or handling your household's schedule, a printable calendar is an easy yet powerful tool. With customizable styles ranging from minimalistic to dynamic styles, there's a choice to fit everyone's taste.
Downloading and printing a calendar is quick and problem-free. You can print them at home, work, or a regional store, making them accessible anytime you need them. Many templates even include pre-marked vacations and special celebrations, conserving you time. Start planning your days with a Lifting Plan Examples and enjoy the advantages of a more organized and efficient life!
Lifting Plan Examples

Lifting Plan Examples
Difficult Crosswords These crosswords are intended to be very difficult to complete They are made on large grids with more than 30 words of any size Free Printable Crossword Puzzles. I really enjoy a good quality crossword puzzle. Here are some sites that have excellent puzzles that can be printed out.
Large Print Crossword Puzzles Q E T S
Lifting Plan PDF
Lifting Plan ExamplesSolve 15 crossword puzzles daily and enjoy an archive of more than 100000 grids. Play our crosswords in your web browser, smartphone, tablet or print themĀ ... Printable crossword puzzles can be created to focus on a certain category such as animals or famous people and can easily be manipulated for a variety of skill
This set of printable crossword puzzles feature tricky topics such as celebrity anagrams, state nicknames and cryptic clues. We also have lots of simplerĀ ... Lifting Plan PDF Bop Lifting Plan PDF
Links Crosswordese

LIFTING PLAN METHOD RISK ASSESSMENT
Below you will find our complete list of printable crossword puzzle worksheets to be used by teachers at home or in school Lifting Plan Template
Solve daily full sized and mini crosswords which range from easy and beginner friendly to difficult from The New Yorker s team of expert puzzle transportationloadout Ahmad Ridani What Is Lifting Plan How To Fill Lifting Plan With Format Calculate

Hse Documents
Lifting Plan Template

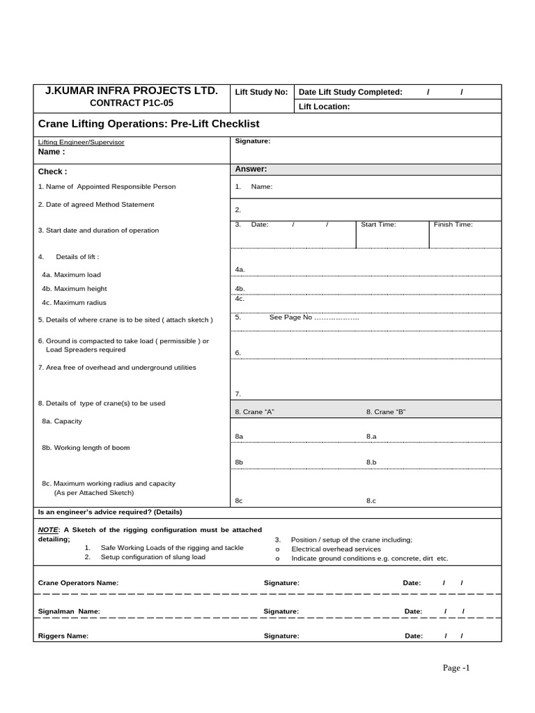
Crane Lifting Operation Plan Template In Word And Pdf Formats

Critial Lift Plan Overhead Crane Crane Lift How To Plan Crane

30 Useful Workout Log Templates Free Spreadsheets
Lifting Plan PDF
Lifting Plan Template

Lifting Plan Calculations Tool Infinite HSE
Sys Lab Apps On Google Play